Henley Houses | 430
Location
Henley-on-Thames, Oxfordshire
Type
Housing
Year
2018-2019
Client
Private
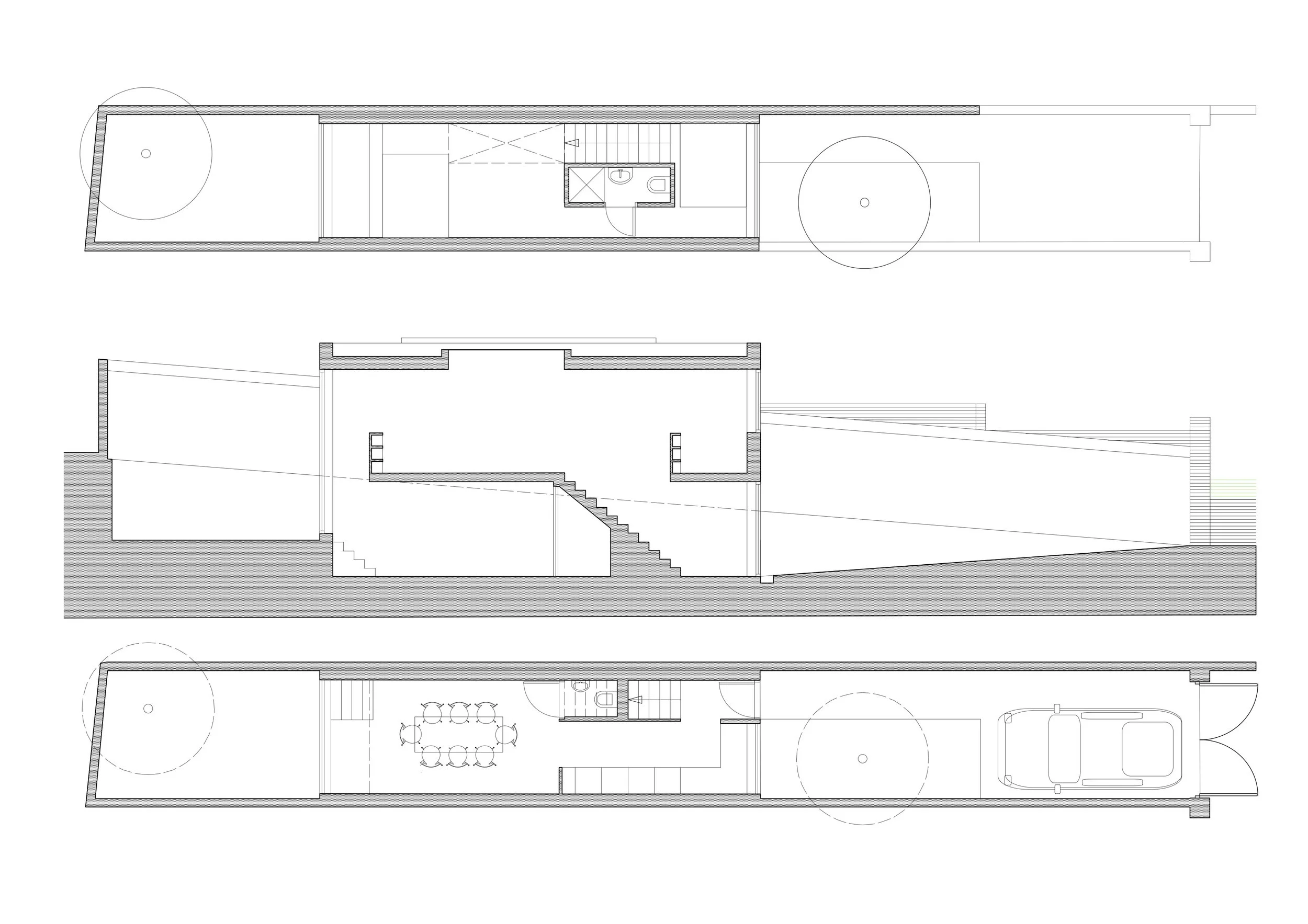
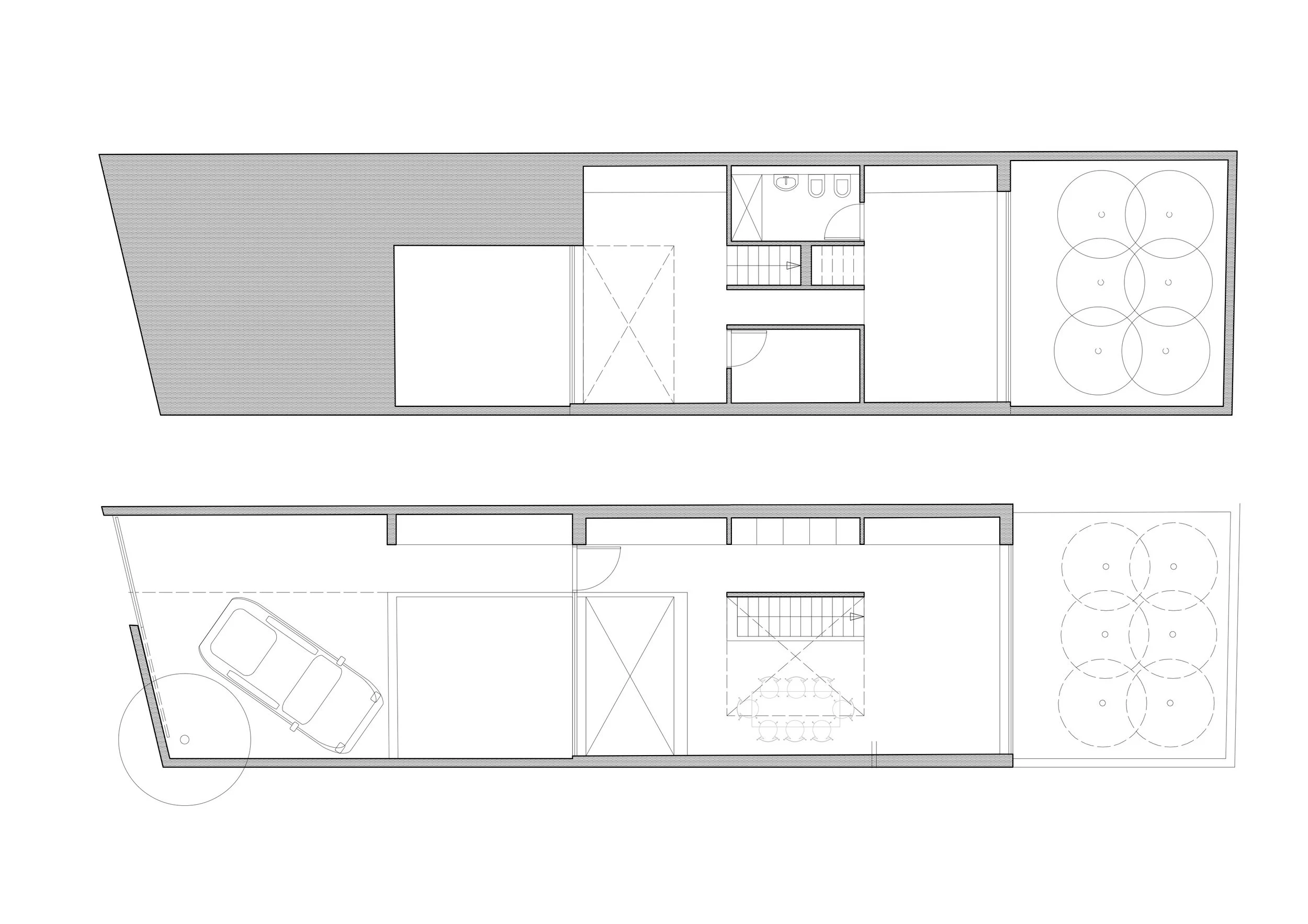
Two houses designed for potential corner plots in Henley on Thames for the architect. Both houses adapt a narrow site ( 3m and 4.5m) to minimise the impact on the plot and its garden, but also excavate basement spaces top-lit by sunken courtyards to provide further accommodation whilst retaining a single storey appearance at street level. Simple brick and timber construction is used in both, with low carbon concrete, basement retaining structures.

