Colourhouse | 226
Location
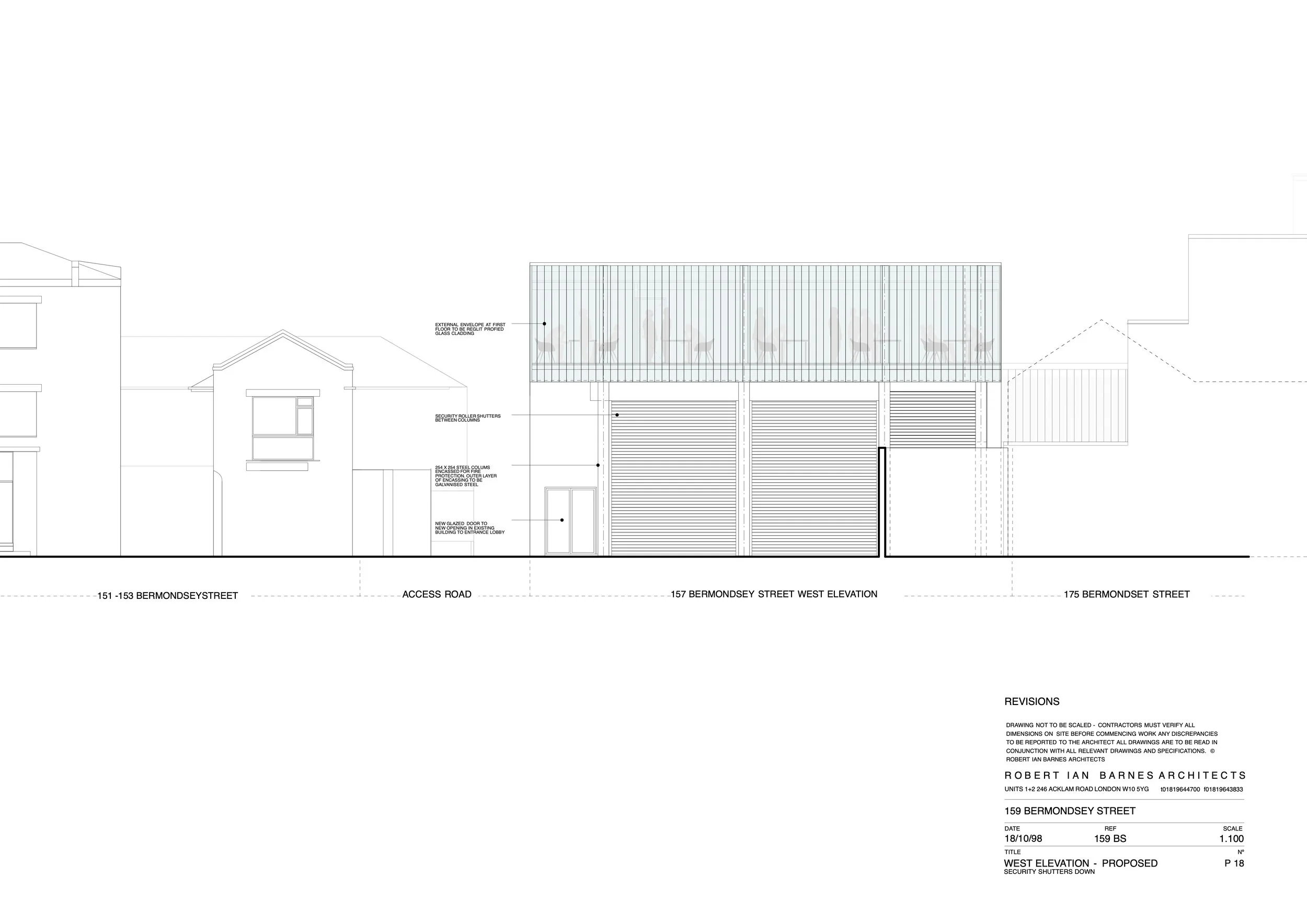
Bermondsey Street, London
Type
Warehouse and Offices
Year
1997
Client
Colourhouse Printers Ltd
An extension and rebranding of a printing works within the Bermondsey Street area which was undergoing much change during the late 1990’s. The proposed new warehouse and office space would also provide for a new appearance for the company going forward into the digital age.

