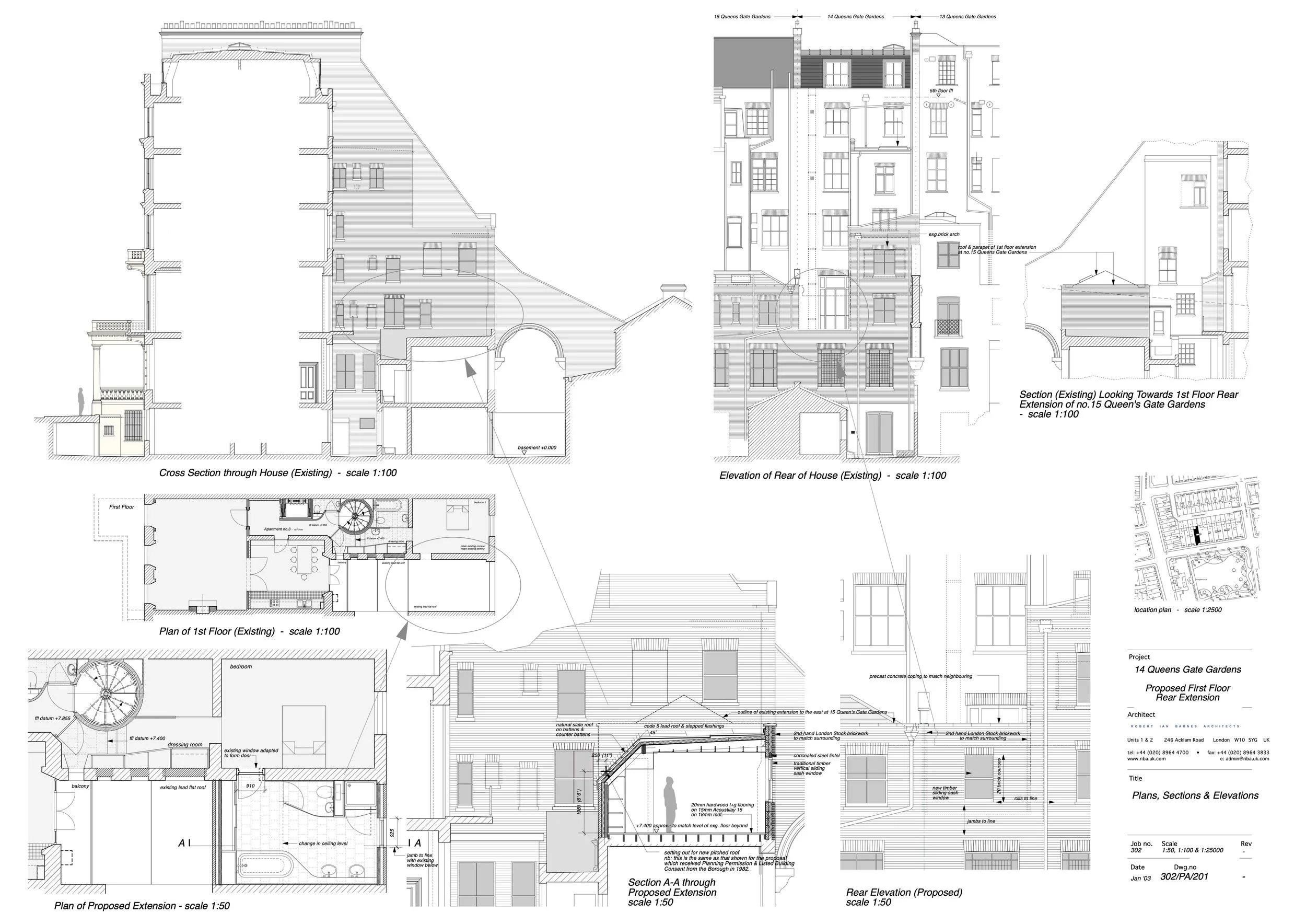
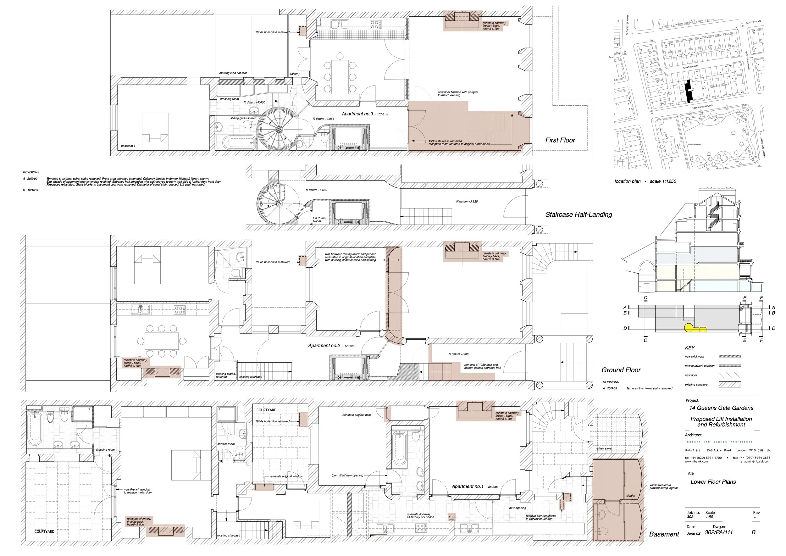
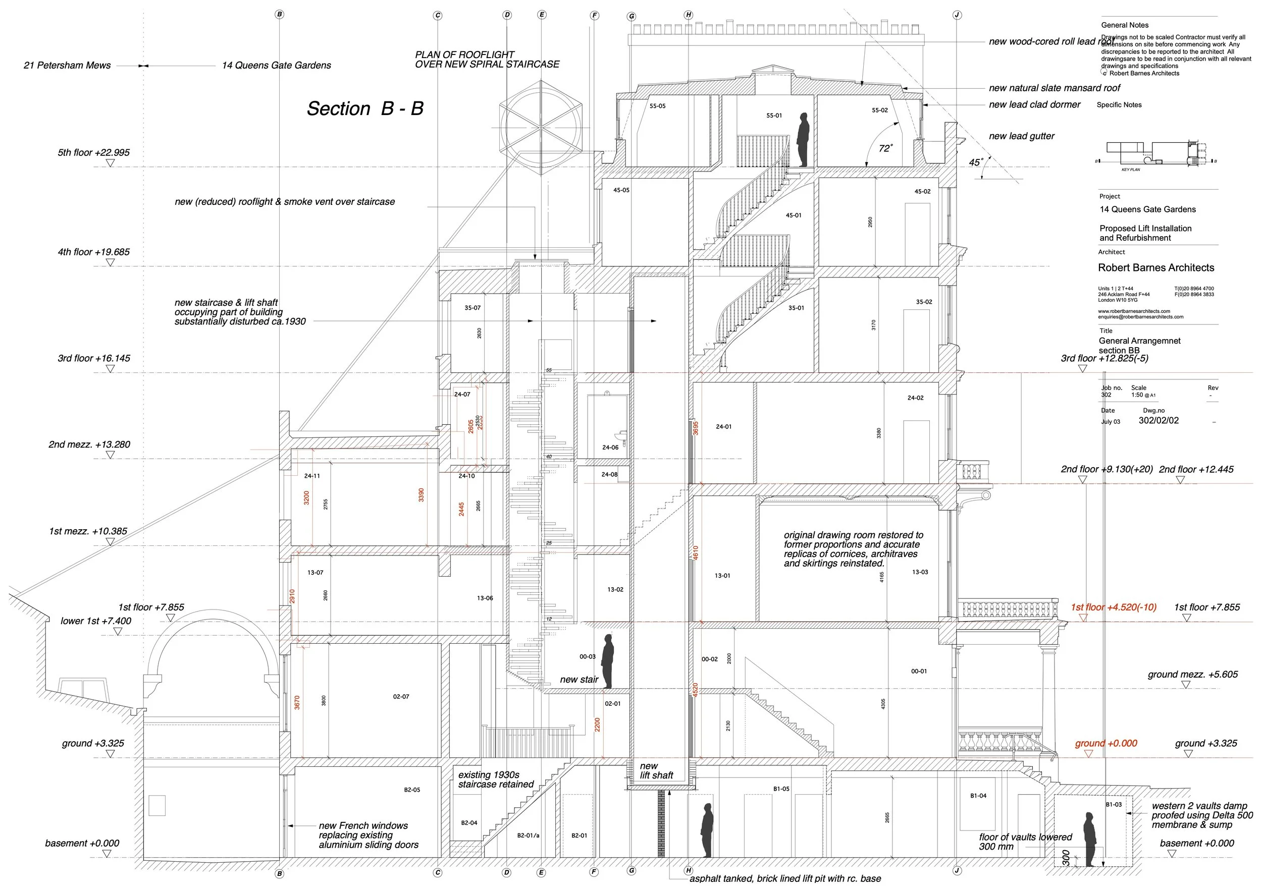
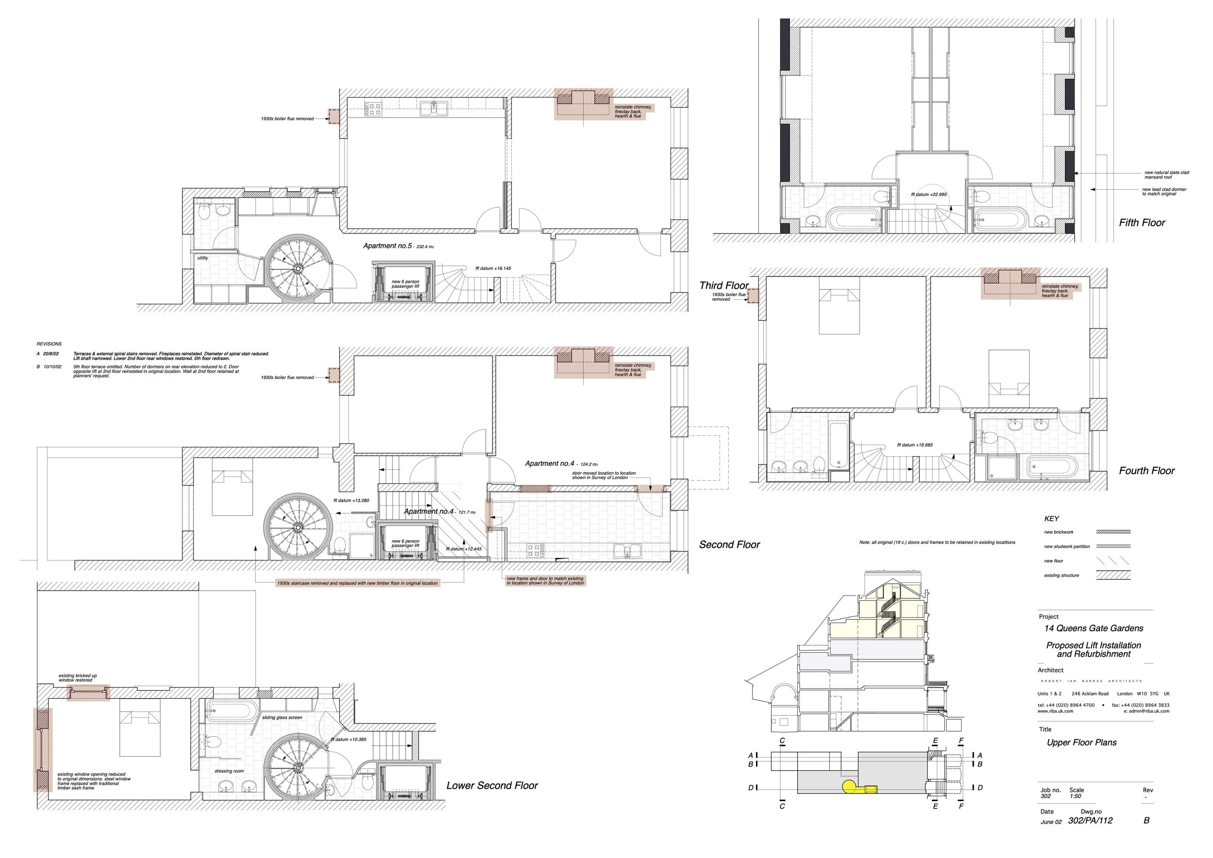
14 Queens Gate Gardens | 302
Location
London
Type
Refurbishment of Grade II Listed Building
Year
2002
Client
Princesgate Property Ltd
A listed building in poor condition having been converted previously into a HMO. A super high quality conversion and restoration into self contained flats on seven floors and into 5 apartments, with lift access. A most complex project for which we were appointed on a full architectural services, and to coordinate the works for structural, electrical and mechanical engineering with bespoke interior design.

