Britannia Basin | 166
Location
Manchester
Type
Competition
Year
1999
Client
Competition
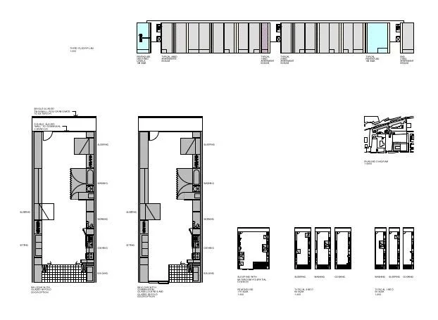
A competition design for a mixed use development on a canal side site in Manchester. Ground floor public and commercial areas with residential apartments over. The canal side site was made fully accessible, and open areas created to complement the new public ground floor uses. The new deck access flats incorporated a previous project 251 Live Work Unit idea in the form of an continuous array of cupboards along the party walls containing all of the services and storage areas for each unit, and leaving a single open flexible space to be subdivided by the occupants.

