Business Innovation Centre | 249
Location
Hastings
Type
Feasibility Study/Business Plan
Year
2001
Client
Hastings Borough Council
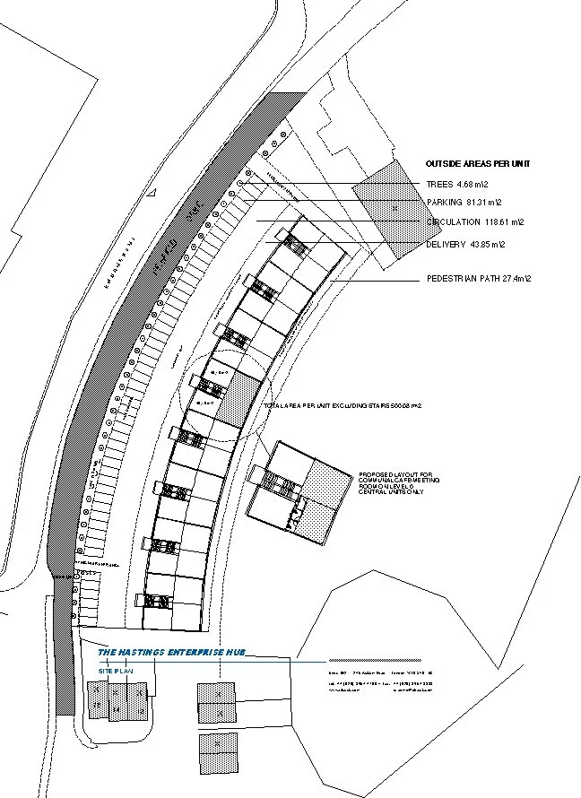
The business plan proposed the creation of new business space and services aimed at supporting micro and small businesses in a variety of growth sectors. It was proposed that a high standared of external design be combined with flexible internal space able to meet the demands of a wide variety of smaller manufacturing, technology and “new economy” firms making their first move.
Drawings

